Facade & Window Shop Drawings
From intial design phase straight through to fabrication / construction. Services include
- Initial review to include into tender package
- D.I.P Drawings / Intial design drawings
- Consultation with Architects & Designers to help achieve real world design
- Shop drawings IFA & IFC sets
- Fabrication Drawings & Glass orders
Commercial Buildings
We provided facade drafting and design services for modern commercial buildings, incorporating unique features.
Commercial Tower
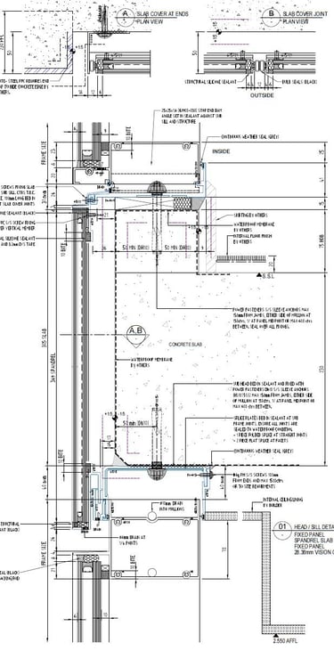
Our team provides precise fabrication drawings for the glass curtain wall and window wall facade for modern commercial towers
We can assist with the following:
- D.I.P. shop drawings for initial design phase
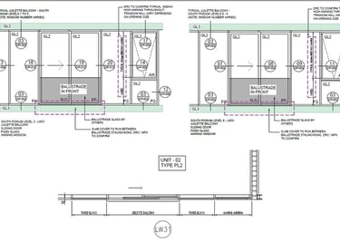
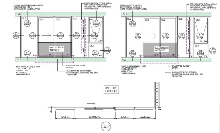
- Shop draw and co-ordinate with relevant trades (co-ordinate includes picking up discrepancies and clashes in documentation, which is cruical to fabrication / glass orders)
- Shop draw and provide glass sizes and fabrication sizes
- Location / Window setouts (includes curtain wall bracket setouts / subframe setouts for window walls, etc)
Commercial Project: Rosebud / Yawa Aquatic Centre
Scope of Works: Design and Construction of Window wall. Externals & Internal Package
Builder: Buxtons
Fabricator: Dynamik Glazing Systems








Get in Touch
We would love to hear from you. Contact us for any inquiries or to request a quote.